Previous | Next | Discuss :: Free Advice (General Feng Shui)
Hi Cecil,
We have now completed our renovation and moved in on an auspicious date picked by Robert.
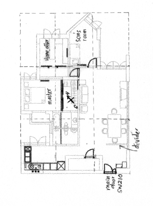
I do have some questions needing your advise after the move in. I wanted to activate mountain star but do not know which is/are the most appropriate sector to do so. Especially whether the main door is consider the frontage or is the windows portion in the living hall the frontage.
Under 20 years analysis, the mountain stars are found in the center sector [1/4 base 7], SW [7/7 base 4](where store, small part of dinner and main door) and in the study/home office of North [6/8 base 3]sector.
I would also like to know if there are any wrong placement of furniture in terms of form and shape theory.
I have attached my new layout as well as my the chart summary. Would greatly appreciate your kind assistance.
Best regards,
Serene
houseplan(1).jpg
house furniture layout plan (148,890 bytes)
|
|
[ Site Search | Forum Search | Picture Search | Site Map ] |
|
|
|
|
||
|
Help Desk: (65) 9785-3171 |
||
|
|
|
|
|
Highlights |
|
Extend your learning with Master Cecil Lee's Applied Feng Shui Made Easy Book. |
|
Site Navigation |
|
|
|
|
Google SiteSearch |
Sponsored Links |
|
|
![]()